Occupying a sought-after non-estate position along Leicester Road, this charming traditional semi-detached home offers character and appeal and presents an excellent opportunity for growing families and first-time buyers alike.

To the front of the property, an entrance porch welcomes you into the main hallway, creating a practical space for coats and shoes. The open plan living/dining room is a particular highlight of the home, enjoying views to both the front and rear aspects. There is ample space for comfortable seating as well as a family dining table, making it perfect for both everyday living and entertaining.

The kitchen is fitted with a range of base and wall units, complemented by two integrated ovens, an induction hob with extractor fan over, and plumbing for a washing machine. Under-unit lighting enhances both the practicality and ambience of the space. A useful understairs storage cupboard adds further convenience.

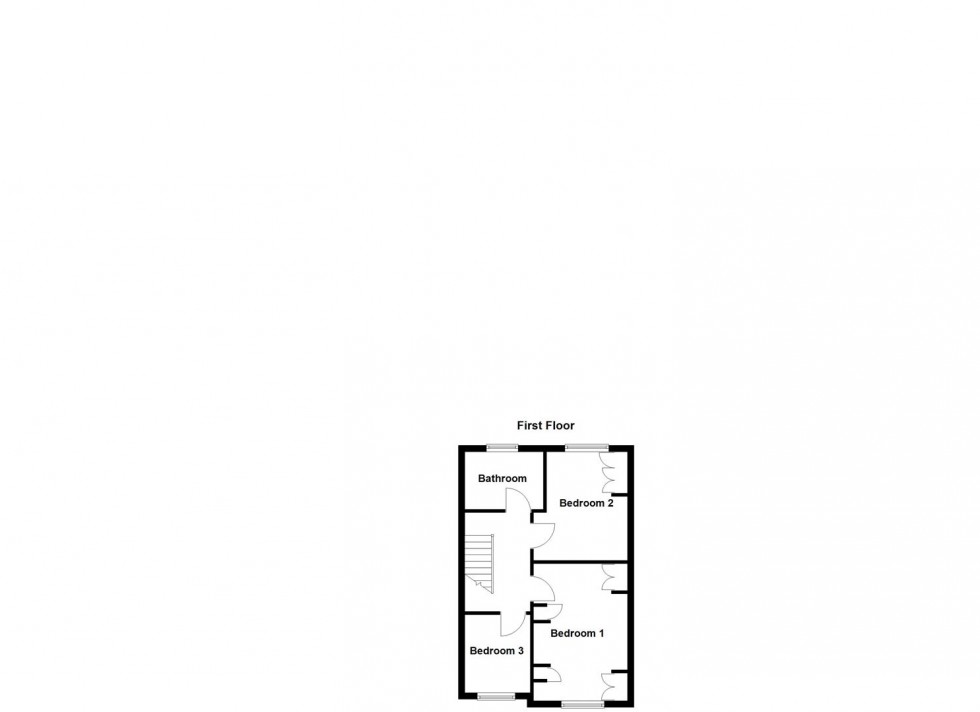
Upstairs, the property offers three bedrooms, with bedrooms one and two benefiting from built-in storage. The family bathroom is well-appointed, featuring a separate bath and shower, along with a WC and wash hand basin.

Externally, the enclosed rear garden is beautifully maintained and thoughtfully arranged, with artificial lawn to the lower section and a further area of natural grass beyond. A generously sized garage provides excellent storage or parking options, and there is an additional outbuilding further up the garden as well as a greenhouse, ideal for those who are keen gardeners.

To the front of the property, there is off-road parking, completing this home on Leicester Road.

Early viewing is highly recommended to fully appreciate the space and potential on offer.
Guide Price £280,000 - £290,000.
  • Delightful Semi-Detached Home
  • Guide Price £280,000 - £290,000
  • Hallway & Open Living/Dining Room
  • Modern Fitted Kitchen
  • First Floor Landing & Bathroom
  • Three Bedrooms
  • Generous Rear Garden
  • Off Road Parking & Carport
  • Storage Garage & Outbuilding
  • Freehold, EPC- D Council Tax Band-B
Floorplan for Leicester Road, Enderby, Leicester Floorplan for Leicester Road, Enderby, Leicester
EPC Graph for Leicester Road, Enderby, Leicester
Similar Properties